Art Gallery

A gallery where spatial clarity and adaptability support changing exhibitions and public engagement.

Size: 1145 SF

Type: Arts & Culture

Location: 102 Atlantic Avenue, Toronto, ON

Client: Artscape (Senior Thesis Project, Yorkville University BID) 

Design Software: 

AutoCAD - 2D Space Planning

Revit - 3D Model & Rendering 

Adobe Photoshop - Entourage & Detailing

A gallery conceived to frame changing exhibitions and support a range of public events within a flexible spatial sequence. The layout is designed to accommodate wall based and free standing works, allowing exhibitions to expand, divide, or overlap while maintaining visual clarity and generous breathing space between artists and installations.

Museum grade track lighting provides precise illumination across all display planes, supporting varied exhibition types and event conditions. Material selections balance durability and atmosphere, with ceramic tile flooring grounding the space and reclaimed Douglas fir ceiling panels moderating acoustics while subtly referencing the structure of a loom.

3D Rendering modeled in Revit showing isolated gallery for solo exhibition.

3D Rendering modeled in Revit demonstrates division of space for multiple artists.

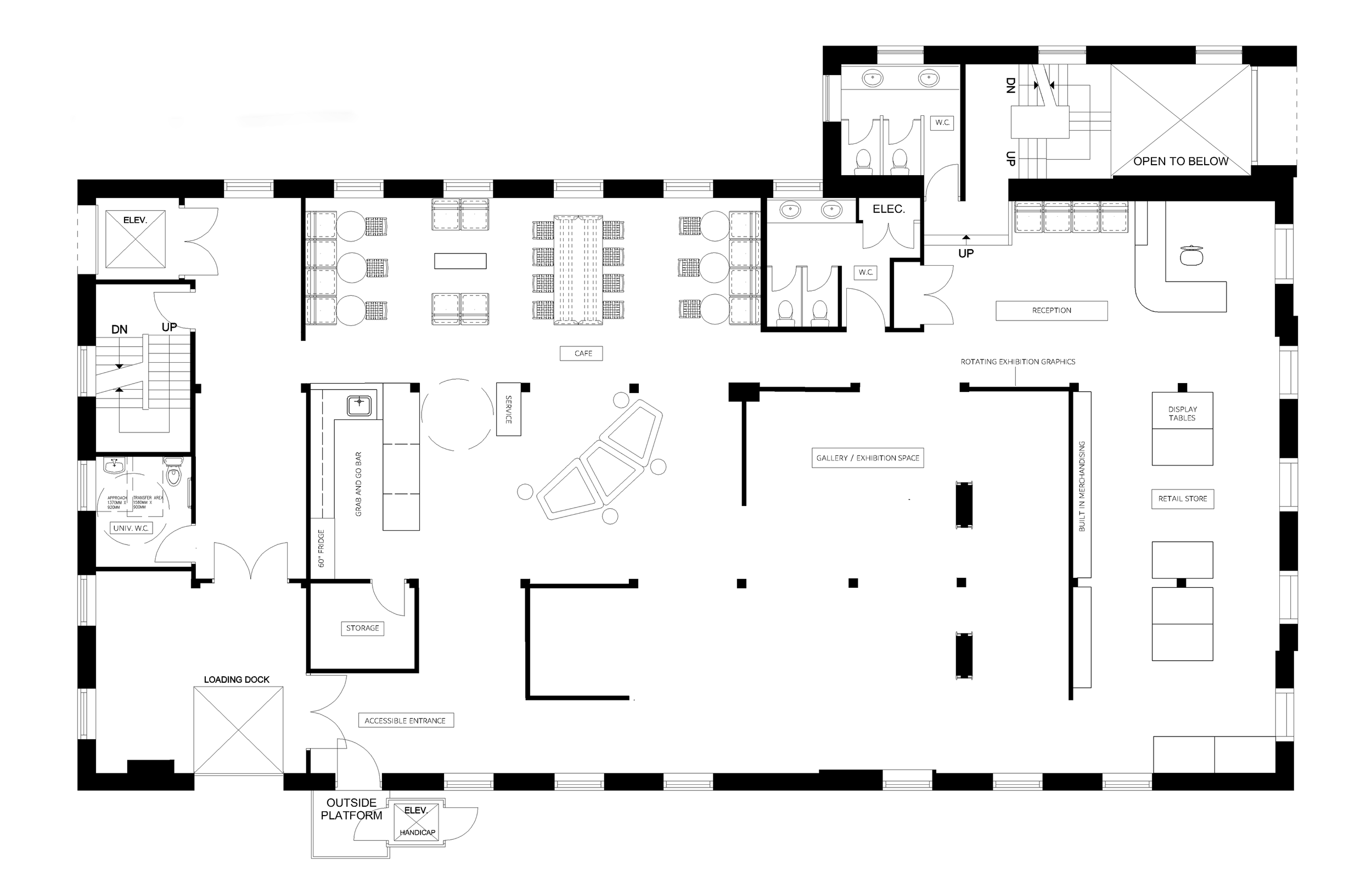
2D Floorplan drawn in AutoCAD demonstrates the circulation between the Cafe, Art Gallery, and Retail Shop.

Previous
Previous

Cafe

Next
Next

Coworking Space