A café concept supporting community, pause, and creative exchange in a cultural environment.

Café

Size: 1148 SF

Type: Restaurant / Hospitality

Location: 102 Atlantic Avenue, Toronto, ON

Client: Artscape (Senior Thesis Project, Yorkville University BID) 

Design Software: 

AutoCAD - 2D Space Planning

Revit - 3D Model & Rendering 

Adobe Photoshop - Entourage & Detailing

3D Rendering of Cafe modeled in Revit showcases FF&E selections from MillerKnoll and Steelcase. Artworks by Brent Wadden.

A café integrated within a downtown Toronto art centre that combines affordable temporary housing and studio space for professional artists. Conceived as a shared environment within the larger institution, the café supports moments of pause, study, and informal gathering while remaining closely connected to the surrounding cultural program.

Seating is organized to accommodate a range of uses, from focused individual work to casual conversation, allowing the space to operate flexibly throughout the day. Material selections balance durability and warmth, while integrated artwork and furnishings reference the loom and the warp and weft of the creative process, reinforcing the café’s role as an extension of artistic production rather than a separate amenity.

3D Rendering of Cafe modeled in Revit with varied seating options and generous circulation allowances for ease of flow in and out.

3D Rendering of Cafe modeled in Revit depicts grab-and-go service counter compliant with universal standards of accessibility.

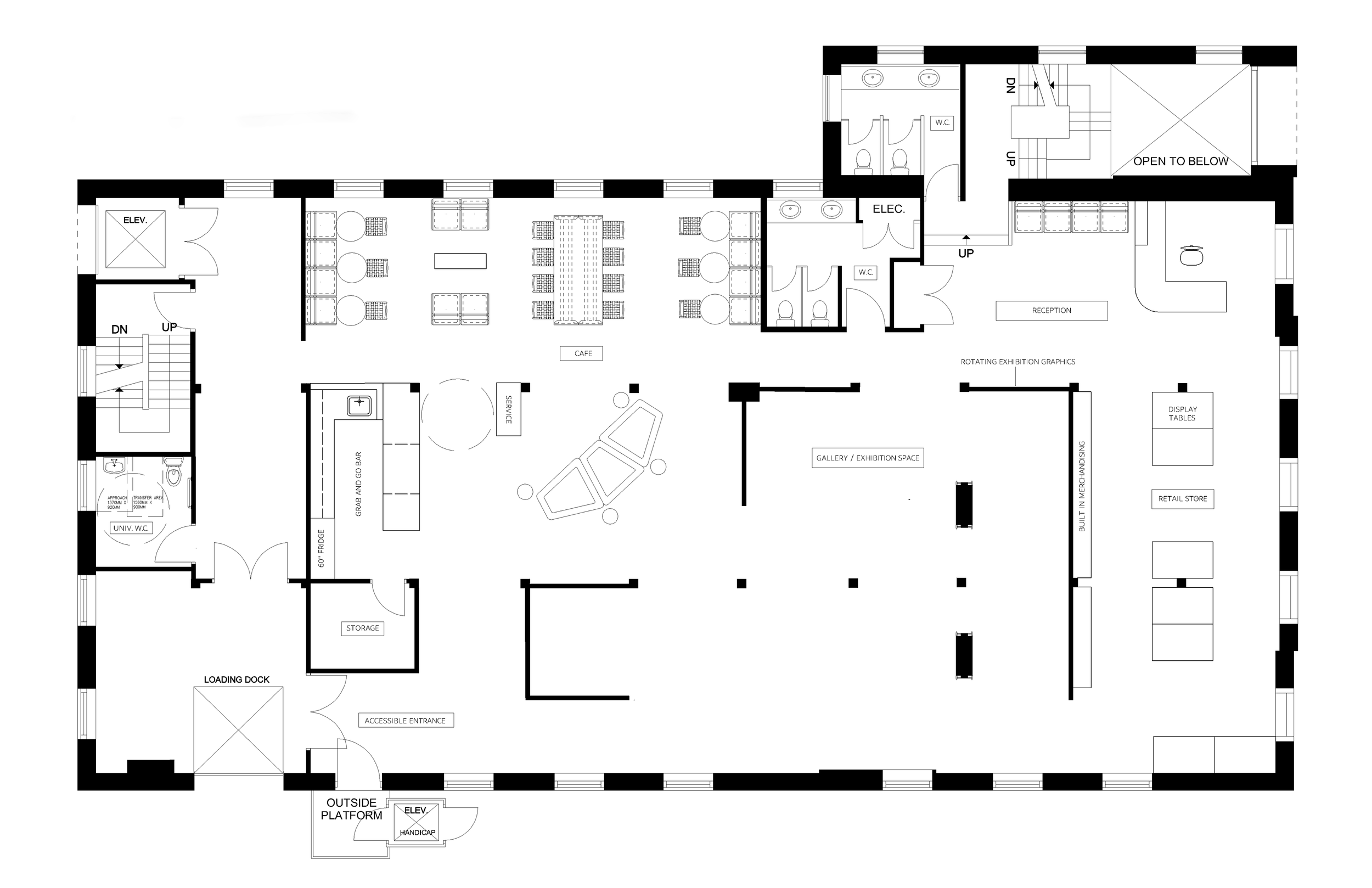
2D Floorplan drawn in AutoCAD demonstrates the circulation between the Cafe and Art Gallery.

Next
Next

Art Gallery