Workplace

A hospitality informed workplace concept translating MindBody’s wellness mission into spatial experience.

Size: 17,532 SF

Type: Workplace

Location: Toronto, ON

Client: MindBody (Studio Project, Yorkville University BID) 

Design Software: 

AutoCAD - 2D Space Planning

Revit - 3D Model & Rendering 

Adobe Photoshop - Entourage & Detailing

3D Renderings modeled in Revit showing the Reception Area with green living wall and furniture from Haworth.

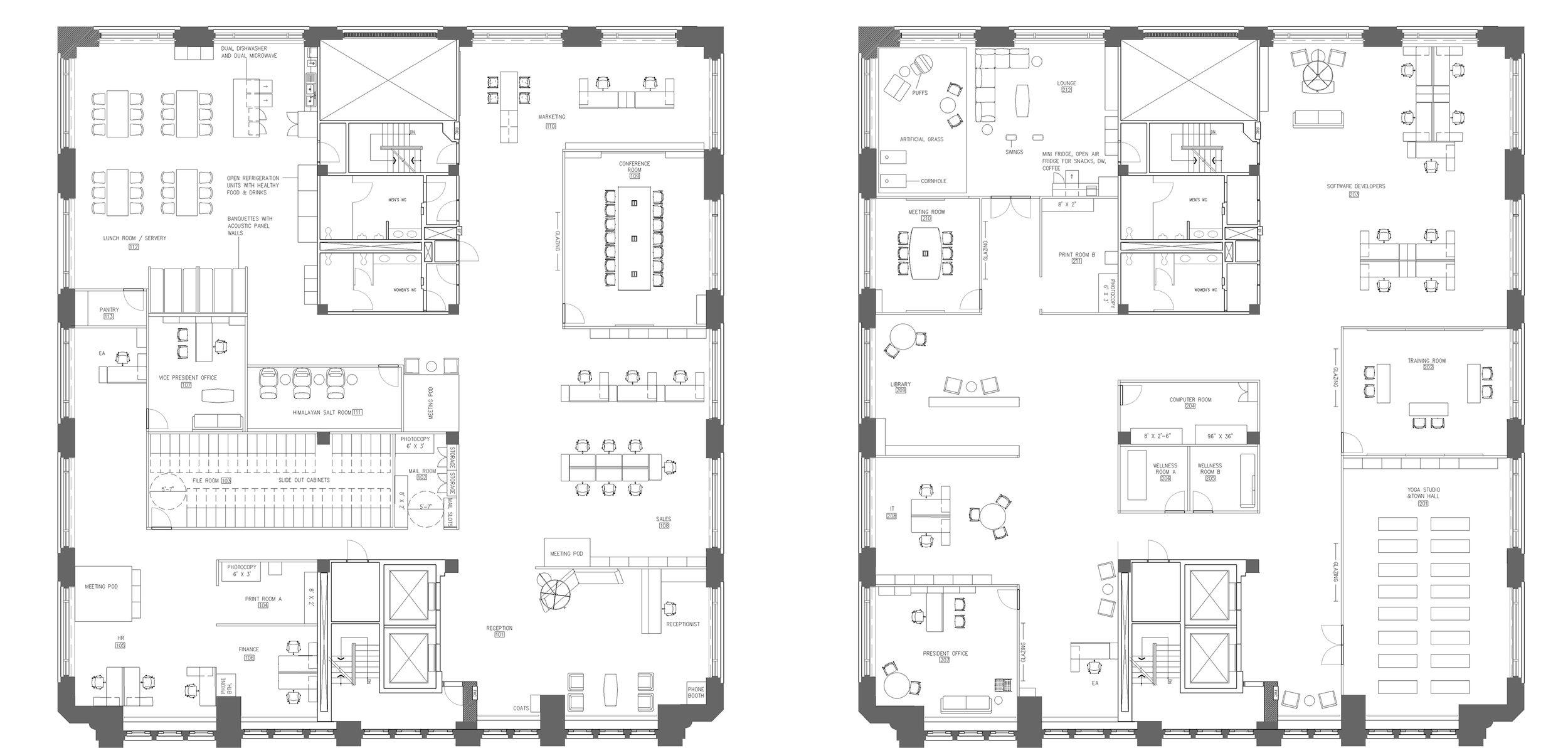
A two floor satellite office concept for the technology company MindBody, designed to support diverse workstyles and employee wellness through a hospitality informed approach. Wellness focused amenities include a yoga studio that doubles as a town hall and event space, a Himalayan salt room, and two privately bookable wellness rooms that also function as nursing spaces.

Daylight mapping and site analysis were used to optimize space planning and views in response to surrounding high rise conditions. Environmental factors such as departmental noise levels and in office frequency informed schematic design, resulting in a workplace tailored to the distinct needs of each team.

Building Section modeled in Revit.

First Floor Plan (Left) and Second Floor Plan (Right) drawn in AutoCAD.

Previous
Previous

Selected Art Projects

Next
Next

Restaurant