Restaurant
A hospitality concept that brings together Japanese restraint and Italian warmth in a modern restaurant environment.
Size: 3056 SF
Type: Restaurant / Hospitality
Location: Toronto, ON
Client: Furusato (Studio Project, Yorkville University BID)
Design Software:
AutoCAD - 2D Space Planning
SketchUp with V-Ray 3D Rendering
Adobe Photoshop - Entourage & Detailing
3D Rendering modeled in SketchUp with V-Ray showing the atmosphere created by the lighting design.
A Japanese Italian restaurant concept located in downtown Toronto, informed by the idea of furusato, understood as an emotional connection to a place that feels like home, regardless of origin or time. The design explores a sense of being between Milan and Kyoto, bringing together Japanese restraint and Italian warmth through materiality, pattern, and furniture selection. Shoji screens and muralled wall treatments are paired with Italian furnishings from Mattiazzi to create a composed yet atmospheric dining environment.
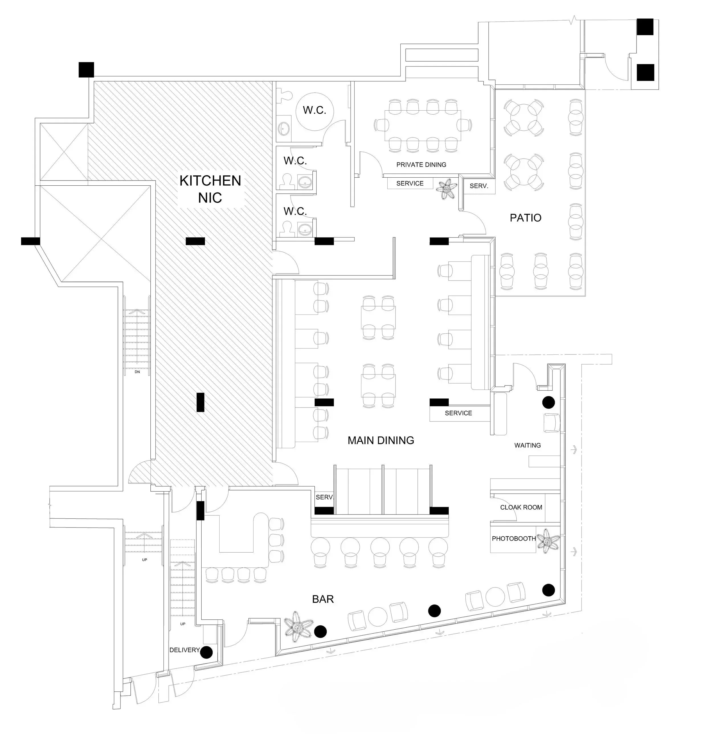
The layout supports a range of dining experiences across the main dining room, bar, private dining room, and patio. Service stations are strategically positioned to allow efficient circulation and discreet access to the kitchen.
3D Rendering modeled in SketchUp with V-Ray of Main Dining Room with view to service desk and street.
Floor Plan showing seating furniture plan within Main Dining Room, Bar, Private Dining, and Patio with connections to service stations.